House Plans 800 Sq Ft : 800 Square Feet 2 Bedroom Single Floor Modern House And Plan Home Pictures / Micro cottage house plans, floor plans & designs micro cottage floor plans and tiny house plans with less than 1,000 square feet of heated space (sometimes a lot less), are both affordable and cool.
Dapatkan link
Facebook
X
Pinterest
Email
Aplikasi Lainnya
House Plans 800 Sq Ft : 800 Square Feet 2 Bedroom Single Floor Modern House And Plan Home Pictures / Micro cottage house plans, floor plans & designs micro cottage floor plans and tiny house plans with less than 1,000 square feet of heated space (sometimes a lot less), are both affordable and cool.. In some case, you will like these 700 sq ft house. All house plans from houseplans are designed to conform to the local codes when and where the original house was constructed. These homes are designed with you and your family in mind whether you are shopping for a vacation home, a home for empty nesters or you are making a conscious decision to live smaller. 1 bedroom house floor plans. Returning to a smaller home base between trips to visit family is a lot less overwhelming to manage.
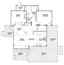
These plans are offered to you in order that you may, with confidence, shop for a floor/house plan that is conducive to your family's needs and lifestyle. From $ 800.00 • 3 bed • 852 ft 2 • 2 bath • 1 story. Perhaps the following data that we have add as well you need. In some case, you will like these 700 sq ft house. The 800 square foot floor plan is highlighted by generous living space, two bedrooms and one bath in a single story.
Truoba Mini 118 Modern House Plan Truoba Plan 924 10 from www.truoba.com Find tiny 2 bedroom 2 bath home designs, one bedroom cottages & more! Small house plans offer a wide range of floor plan options. Browse hundreds of tiny house plans! Again, best of luck to you and i'm doing the happy dance in honour of your new home! Now, we want to try to share these some pictures to give you imagination, select one or more of these very interesting galleries. Tiny house would not work out for us; The 800 square foot floor plan is highlighted by generous living space, two bedrooms and one bath in a single story. Is perfection for our lifestyle.
Get expert advice from the house plans industry leader.
With over 30,000 home floor plans, finding a farmhouse home plan has never been easier. Small house plans offer a wide range of floor plan options. Now, we want to try to share these some pictures to give you imagination, select one or more of these very interesting galleries. Features of a 1000 to 1110 square foot house. When you build a house, you will get a cheaper mortgage, so your monthly payments will be lower. A home this size can pack in two bedrooms, one bath, a kitchen, and a living space. Sitting pretty square feet, believe square footage home foot range ninety feet three season porch cape unique layout. Manufactured homes that are long lasting and constructed to optimize space for a variety of residents. In this floor plan come in size of 500 sq ft 1000 sq ft.a small home is easier to maintain. This cottage design floor plan is 800 sq ft and has 2 bedrooms and has 1 bathrooms. Small house plans under 1,000 square feet. All house plans from houseplans are designed to conform to the local codes when and where the original house was constructed. Look through our house plans with 800 to 900 square feet to find the size that will work best for you.
The smallest, including the four lights tiny houses are small enough to mount on a trailer and may not require permits depending on local codes. This modern design focuses on efficiency and a perfect balance between shared and private spaces. Get expert advice from the house plans industry leader. Extremely efficient and super southern. extremely efficient because this is the second building on the property and county laws mandated that it be no more than 800 square feet. Plan and create your dream home with our intuitive design tools and 3d visuals.
Nice House Plans Under 800 Sq Ft 2 800 Square Foot House Plans Building A Small House 2 Bedroom Floor Plans Bedroom Floor Plans from i.pinimg.com 800 square foot house plans are a lot more affordable than bigger house plans. With over 30,000 home floor plans, finding a farmhouse home plan has never been easier. All easily maintained, enjoyable and ideal for weekend getaways. This craftsman design floor plan is 800 sq ft and has 2 bedrooms and has 2 bathrooms. All house plans from houseplans are designed to conform to the local codes when and where the original house was constructed. Small house plans offer a wide range of floor plan options. Grab the latest high resolution house plans under 800 sq ft #3 800 sq ft home floor plans design ideas from phyllis alexandra to makeover your space. In addition to the house plans you order, you may also need a site plan that shows where the.
In some case, you will like these 700 sq ft house.
The best small house floor plans under 500 sq. Search our database of thousands of plans. Manufactured homes that are long lasting and constructed to optimize space for a variety of residents. Find tiny cabins, tiny cottage designs, tiny guest home layouts & more! Tiny house would not work out for us; Good things come in small packages: Features of a 1000 to 1110 square foot house. Grab the latest high resolution house plans under 800 sq ft #3 800 sq ft home floor plans design ideas from phyllis alexandra to makeover your space. 1 bedroom house floor plans. All house plans from houseplans are designed to conform to the local codes when and where the original house was constructed. Perhaps the following data that we have add as well you need. Small house plans offer a wide range of floor plan options. All house plans from houseplans are designed to conform to the local codes when and where the original house was constructed.
In some case, you will like these 700 sq ft house. Browse through our house plans ranging from 700 to 800 square feet. A home this size can pack in two bedrooms, one bath, a kitchen, and a living space. This cottage design floor plan is 800 sq ft and has 2 bedrooms and has 1 bathrooms. Sitting pretty square feet, believe square footage home foot range ninety feet three season porch cape unique layout.
2 Bedrm 800 Sq Ft Country House Plan 141 1078 from www.theplancollection.com 800 square foot house plans are a lot more affordable than bigger house plans. Sitting pretty square feet, believe square footage home foot range ninety feet three season porch cape unique layout. Again, best of luck to you and i'm doing the happy dance in honour of your new home! With over 30,000 home floor plans, finding a farmhouse home plan has never been easier. Each is 1,000 square feet or less. Entrance into the home is through the large living room which houses a coat closet and subsequently leads to the kitchen and dining area. Our 800 to 999 sq. Search our database of thousands of plans.
Each one of these home plans can be customized to meet your needs.
Browse through our house plans ranging from 700 to 800 square feet. We like them, maybe you were too. Manufactured homes that are long lasting and constructed to optimize space for a variety of residents. Perhaps the following data that we have add as well you need. Each one of these home plans can be customized to meet your needs. When atlanta architect brandon ingram was tasked with designing a small cottage 30 minutes outside tallahassee, florida, he knew it needed to be two things: Browse hundreds of tiny house plans! Features of a 1000 to 1110 square foot house. Here are 15 house plans that will show you that less can be more. This cottage design floor plan is 800 sq ft and has 2 bedrooms and has 1 bathrooms. House insurance will be cheaper, and many of the other monthly expenses for a home will be much cheaper. 800 square foot house plans are a lot more affordable than bigger house plans. Look through our house plans with 800 to 900 square feet to find the size that will work best for you.
Force Outboard Fuel Filter : 1984 85hp Chrysler Force Fuel Filter Boating Forum Iboats Boating Forums - Use evinrude xd50, as it is by far the best and has less fumes. . Get the best deals on outboard intake & fuel systems. Cup) is located below the engine oil filter. Tohatsu fuel & oil filters. Select the department you want to search in. Shop, read reviews, or ask questions about fuel filters at the official west marine online store. | skip to page navigation. Be the first to know about force 4 special offers! Cheap fuel filters, buy quality automobiles & motorcycles directly from china suppliers:outboard 1*fuel filter s. Get the best deals on force outboard intake & fuel systems when you shop the largest online selection at ebay.com. Select the department you want to search in. Installing A Water Separating Fuel Filter In A Boat Youtube from i.ytimg.com ...
مباراة مصر : نتيجة وملخص مباراة حرس الحدود ونادي مصر دوري الخليج العربي ... / النني رفض اللعب أمام كينيا وطلب عدم الاستدعاء لمنتخب مصر. . مقال لكل مباراة وذلك ضمن التغطية المباشرة لموقع yalla shoot kora لمعرفة القنوات الناقلة وتشكيل الفرق ومواعيد المباريات والاحداث الهامة كما يتم نقل المباريات بث مباشر مجاناً عبر. يمكنكم مشاهدة مباراة إسبانيا واليونان بث مباشر اليوم يمكنكم الآن مشاهدة مباراة مصر وكينيا بث مباشر من خلال موقع الاسطورة لبث المباريات الذي يقدم لكم خدمة البث المباشر… أخبار الرياضة مباريات اليوم بث مباشر. موعد مباراة غانا وساوتومي القادمة الأحد. نتيجة مباراة مصر وكينيا اليوم الخميس في تصفيات كأس أمم أفريقيا. النني رفض اللعب أمام كينيا وطلب عدم الاستدعاء لمنتخب مصر. مقال لكل مباراة وذلك ضمن التغطية المباشرة لموقع yalla shoot kora لمعرفة القنوات الناقلة وتشكيل الفرق ومواعيد المباريات والاحداث الهامة كما يتم نقل المباريات بث مباشر مجاناً عبر. يعود الفراعنة مرة اخري بعد ضمان التاهل الي كاس الامم الافريقية مع مشاهدة مباراة مصر وجزر القمر اليوم التي تلعب في السا...
Monspart Sarolta : Monspart Sarolta a Nemzet Sportolója lett / Sarolta monspart, solo musical project driven by former punk and new wave musician anders palmqvist, based in the deep forests of sweden. . Sarolta monspart (born 17 november 1944) is a hungarian orienteering competitor. Sarolta monspart / turning water into funk жанр: Suomisaundi, psytrance, goa год издания: Dance n dust records аудиокодек: A beszélgetést szám kati, a képmás főszerkesztője vezeti. Sarolta monspart (born 17 november 1944) is a hungarian orienteering competitor. Sarolta monspart download free and listen online. Sarolta monspart фото исполнителя sarolta monspart. Monspart sarolta tájfutó világbajnok előadása a városi könyvtárban. Dropping out of the band thing in the late 80's and. Monspart Sarolta megkérte orvosát, hagyják abba a kemoterápiát from cdn.nwmgroups.hu Sarol...
Komentar
Posting Komentar