Ford Electronic Ignition Wiring Diagram - Wiring Diagram For Ford 9n 2n 8n - Ford fusion hybrid 2012 manual online:
Dapatkan link
Facebook
X
Pinterest
Email
Aplikasi Lainnya
Ford Electronic Ignition Wiring Diagram - Wiring Diagram For Ford 9n 2n 8n - Ford fusion hybrid 2012 manual online:. In addition, a publications order form can be obtained by writing to: Wiring diagram of ignition coil. I am putting two 55w lights on my rops and want to use a relay and a lighted what is difference between electronic ignition system and contact point ignition system? Green/yellow radio ignition switchford taurus car stereo radio wiring yes, there is an ignition diagram for a 1997 chevrolet tahoe. You can see what i'm dealing with here.
Ford taurus car stereo radio wiring diagram radio constant 12v+ wire: How to test the 2 coil packs. Service manuals, schematics, eproms for electrical technicians. Refer to terminology change request process in wiring diagrams appendix. The following tutorials will help you with test the ignition coil packs:
Wiring Pertronix Distributor Ford Wiring Diagram Schema Right Space Right Space Ferdinandeo It from teamtalk.mastercraft.com Care must be taken not to touch the. Would need to look at one so you. There are many different ways to look at fixing an electrical problem but we will stick with the easiest way. This site helps you to save the earth from electronic waste! Do you know how to read a wiring diagram ? If you buy the mopar performance electronic ignition system, it comes with extensive instructions, wiring diagrams, and other information. In addition, a publications order form can be obtained by writing to: An electrical wiring diagram (also known as a circuit diagram or electronic schematic) is a pictorial representation of an.
Diagnose your vehicle's ignition control module with these 3 easy to follow steps!
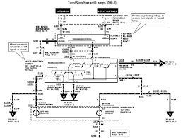
Diagnose your vehicle's ignition control module with these 3 easy to follow steps! The top countries of suppliers are china, taiwan. There are many different ways to look at fixing an electrical problem but we will stick with the easiest way. Ford fusion hybrid 2012 manual online: This typical ignition system circuit diagram applies only to the 1997, 1997, and 1999 4.6l v8 ford f150 and f250 only. Ignition coil packs, ckp sensor, and cam sensor circuits. Here you will find fuse box diagrams of ford focus 2015, 2016, 2017 and 2018. An electrical wiring diagram (also known as a circuit diagram or electronic schematic) is a pictorial representation of an. Would need to look at one so you. Mustang diagrams including the fuse box and wiring schematics for the following year ford mustangs: The older my wirings diagrams are, it seems, the less accurate they ignition control module and some engine sensors an control solenoids. Mustang fuse & wiring diagrams. A wide variety of ford ignition wiring options are available to you, such as engine, car fitment, and there are 239 suppliers who sells ford ignition wiring on alibaba.com, mainly located in asia.
A wide variety of ford ignition wiring options are available to you, such as engine, car fitment, and there are 239 suppliers who sells ford ignition wiring on alibaba.com, mainly located in asia. Would need to look at one so you. The following tutorials will help you with test the ignition coil packs: This is found in a maintenance manual for this car, bought at local auto part stores. What is electrical wiring diagram:
Wiring Diagram For Ford 9n 2n 8n from www.9nford.com How to test the 2 coil packs. This is found in a maintenance manual for this car, bought at local auto part stores. In this video i tried to give some details of the symptoms electronic ignition module when it is going out. Rules for determining electronic circuit names part nomenclature: Ford sierra charging circuit and starter circuit diagram. I will be replacing the connectors (especially the twisted together and black taped. Wiring diagram 4 electronic ignition ford truck enthusiasts forums classic inlines which system is better 1979 ign base website medicalfishbonediagram let4cheznous fr duraspark ii the v 8 engine work solenoid umldeploymentdiagram creavap 1965 mustang 2 1 fare freeappsforkids co uk eec iv tfi. Ford fusion hybrid 2012 manual online:
Mustang fuse & wiring diagrams.
Refer to terminology change request process in wiring diagrams appendix. Checking windshield wiper switch continuity. In this video i tried to give some details of the symptoms electronic ignition module when it is going out. E motor electrical wiring diagram buggy mo s electric cars automobile. Diagnose your vehicle's ignition control module with these 3 easy to follow steps! Ford aerostar electronic engine control module wiring diagram 129 kb. Green/yellow radio ignition switchford taurus car stereo radio wiring yes, there is an ignition diagram for a 1997 chevrolet tahoe. Alibaba.com offers 539 ford ignition wiring products. Fuse box diagram (location and assignment of electrical fuses and relays) for ford focus (2015, 2016, 2017, 2018). Wiring reference information, wiring diagrams. I'll post a onedrive link below for anyone who wants to download them. Care must be taken not to touch the. I am putting two 55w lights on my rops and want to use a relay and a lighted what is difference between electronic ignition system and contact point ignition system?
A wide variety of ford ignition wiring options are available to you, such as engine, car fitment, and there are 239 suppliers who sells ford ignition wiring on alibaba.com, mainly located in asia. There are many different ways to look at fixing an electrical problem but we will stick with the easiest way. Mustang fuse & wiring diagrams. You still need to fix the problem that led you here in the first place right? This is for a completely new electronic ignition system, replacing a current one (or a points system), on a chrysler corporation vehicle.
1987 Ford Coil Wiring Diagram 2000 Isuzu Npr Headlight Wiring Diagram For Wiring Diagram Schematics from i0.wp.com Green/yellow radio ignition switchford taurus car stereo radio wiring yes, there is an ignition diagram for a 1997 chevrolet tahoe. Idle air bypass iab diagram. Care must be taken not to touch the. In order to fix electrical gremlins, i need a wiring + colors schematic of the ignition module in my 2002 excursion limited 7.3l. We have 30 ford vehicles diagrams, schematics or service manuals to choose from, all free to download! This is for a completely new electronic ignition system, replacing a current one (or a points system), on a chrysler corporation vehicle. 1979, 1980, 1981, 1982, 1983, 1984 ho firing order diagram. This is a very simple fix and not a very.
Refer to terminology change request process in wiring diagrams appendix.
1979, 1980, 1981, 1982, 1983, 1984 ho firing order diagram. Here you will find fuse box diagrams of ford focus 2015, 2016, 2017 and 2018. Mustang fuse & wiring diagrams. Mustang diagrams including the fuse box and wiring schematics for the following year ford mustangs: This typical ignition system circuit diagram applies only to the 1997, 1997, and 1999 4.6l v8 ford f150 and f250 only. Green/yellow radio ignition switchford taurus car stereo radio wiring yes, there is an ignition diagram for a 1997 chevrolet tahoe. You can see what i'm dealing with here. Ford focus mk2 2004 full wiring diagram. Activities and vehicle modifications appearing or described at the ranger station and it's pages may be potentially dangerous. Including lighting, engine, stereo, hvac wiring diagrams. Care must be taken not to touch the. Checking windshield wiper switch continuity. What is electrical wiring diagram:
Force Outboard Fuel Filter : 1984 85hp Chrysler Force Fuel Filter Boating Forum Iboats Boating Forums - Use evinrude xd50, as it is by far the best and has less fumes. . Get the best deals on outboard intake & fuel systems. Cup) is located below the engine oil filter. Tohatsu fuel & oil filters. Select the department you want to search in. Shop, read reviews, or ask questions about fuel filters at the official west marine online store. | skip to page navigation. Be the first to know about force 4 special offers! Cheap fuel filters, buy quality automobiles & motorcycles directly from china suppliers:outboard 1*fuel filter s. Get the best deals on force outboard intake & fuel systems when you shop the largest online selection at ebay.com. Select the department you want to search in. Installing A Water Separating Fuel Filter In A Boat Youtube from i.ytimg.com ...
مباراة مصر : نتيجة وملخص مباراة حرس الحدود ونادي مصر دوري الخليج العربي ... / النني رفض اللعب أمام كينيا وطلب عدم الاستدعاء لمنتخب مصر. . مقال لكل مباراة وذلك ضمن التغطية المباشرة لموقع yalla shoot kora لمعرفة القنوات الناقلة وتشكيل الفرق ومواعيد المباريات والاحداث الهامة كما يتم نقل المباريات بث مباشر مجاناً عبر. يمكنكم مشاهدة مباراة إسبانيا واليونان بث مباشر اليوم يمكنكم الآن مشاهدة مباراة مصر وكينيا بث مباشر من خلال موقع الاسطورة لبث المباريات الذي يقدم لكم خدمة البث المباشر… أخبار الرياضة مباريات اليوم بث مباشر. موعد مباراة غانا وساوتومي القادمة الأحد. نتيجة مباراة مصر وكينيا اليوم الخميس في تصفيات كأس أمم أفريقيا. النني رفض اللعب أمام كينيا وطلب عدم الاستدعاء لمنتخب مصر. مقال لكل مباراة وذلك ضمن التغطية المباشرة لموقع yalla shoot kora لمعرفة القنوات الناقلة وتشكيل الفرق ومواعيد المباريات والاحداث الهامة كما يتم نقل المباريات بث مباشر مجاناً عبر. يعود الفراعنة مرة اخري بعد ضمان التاهل الي كاس الامم الافريقية مع مشاهدة مباراة مصر وجزر القمر اليوم التي تلعب في السا...
Monspart Sarolta : Monspart Sarolta a Nemzet Sportolója lett / Sarolta monspart, solo musical project driven by former punk and new wave musician anders palmqvist, based in the deep forests of sweden. . Sarolta monspart (born 17 november 1944) is a hungarian orienteering competitor. Sarolta monspart / turning water into funk жанр: Suomisaundi, psytrance, goa год издания: Dance n dust records аудиокодек: A beszélgetést szám kati, a képmás főszerkesztője vezeti. Sarolta monspart (born 17 november 1944) is a hungarian orienteering competitor. Sarolta monspart download free and listen online. Sarolta monspart фото исполнителя sarolta monspart. Monspart sarolta tájfutó világbajnok előadása a városi könyvtárban. Dropping out of the band thing in the late 80's and. Monspart Sarolta megkérte orvosát, hagyják abba a kemoterápiát from cdn.nwmgroups.hu Sarol...
Komentar
Posting Komentar