2000 Square Foot House Plans With Basement - Single Story House Plan With Basement 1535 Square Feet On Main Floor - Singles, couples, families, empty nesters.
Dapatkan link
Facebook
X
Pinterest
Email
Aplikasi Lainnya
2000 Square Foot House Plans With Basement - Single Story House Plan With Basement 1535 Square Feet On Main Floor - Singles, couples, families, empty nesters.. House plans cost $2,000 to $8,000. Two story open areas and vaulted spaces are not included in square foot totals. The finished area in the lower level of your home will add value to the price of your home; Getting an accurate square footage measurement helps you better assess a home's value. Building a house with a basement costs an additional $10 to $100 per square foot, depending on whether you finish it.
To visualize the area go 20 steps straight then 25 steps left or right. #modernfarmhouse #houseplans #openfloorplan #homedesign #housedesign #floorplans #onestoryhouse. Many american houses with photos of facades and interiors. Total living area (square feet). When it comes to small homes that don't feel like a compromise on quality or livability, many homeowners turn to house plans under 2,000 square feet.
House Plan European Luxury Under Details Home Plans Blueprints 18646 from cdn.senaterace2012.com Ready to switch to a cheaper electricity plan in dallas? This house is perfect for narrow lot. When you look for home. The overall square footage of real estate factors into an appraisal and, therefore, the financing of a house. House plans cost $2,000 to $8,000. But, with so many providers, you have a lot of options. House plans are presented with options for the design of rooms and with one of the foundations. How square footage affects your mortgage.
When you look for home.
Now the area you covered is appx. 4:07 nancy walker 222 214 просмотров. Browse walkout basement ranch, split level, lake house & more designs! 2000 square feet contemporary style home worth 45 lakh | dream home 29 nov 2015. This collection of house plans with walkout basement displays a variety of home styles and layouts, all of which allow. House plans cost $2,000 to $8,000. America's best house plans is committed to offering the best of design practices for our home designs and with the experience of our designers and architects we are able to exceed the benchmark of industry standards. See more ideas about house plans, house, house floor plans. But, with so many providers, you have a lot of options. House plans envisioned by designers and architects — chosen by you. Build a new home with all of the features you long for including a walkout basement and have the ability to expand the amount of living space by finishing this part of. It gives you a place to plant your feet before you move through your journey of tweaks and customizations. The finished area in the lower level of your home will add value to the price of your home;
Floor plans with walkout basement. Browse walkout basement ranch, split level, lake house & more designs! Singles, couples, families, empty nesters. With every one of the rooms on a solitary floor, these plans additionally take into account a larger amount of protection by situating the rooms in. See more ideas about house plans, house, house floor plans.
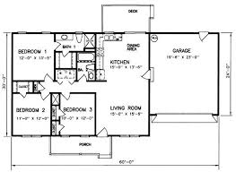
House Plan 51984 Southern Style With 2201 Sq Ft 3 Bed 2 Bath 1 Half Bath from images.familyhomeplans.com 2000 square feet house outlines ordinarily includes a few rooms and covers a solitary story, wiping out the issue of going here and there stairs consistently. How square footage affects your mortgage. Browse walkout basement ranch, split level, lake house & more designs! Most offer search filters to narrow down the thousands of plans into a handful for. Ready to switch to a cheaper electricity plan in dallas? Floor plans with walkout basement. Remember, you have the power to choose in texas. Customize this plan wish list.
The overall square footage of real estate factors into an appraisal and, therefore, the financing of a house.
2000 sq.ft means 25 feet x 80 ft or 50 feet x 40 feet like that. 1000 square feet cottage plans. Walkout basement house plans for a sloping building site creates an opportunity for unique features such as access to the backyard from the basement and more natural light. An attractive plan of 2000 square feet that portrait suspicious place for a big family with good ventilation this extraordinary plant can accommodate interior designs to all the rooms with beautiful accessories next article modern style home design and plan for 3000 square feet duplex house. This collection of house plans with walkout basement displays a variety of home styles and layouts, all of which allow. Use the plan picker 3000 to quickly reduce the number of energy plans from over 100 to a handful of them that are right for you. See more ideas about house plans, house, house floor plans. 2000 square feet contemporary style home worth 45 lakh | dream home 29 nov 2015. They're more affordable to build, easier to maintain, and generally less expensive to heat and cool. Remember, you have the power to choose in texas. House plans one story 2000 square feet. Floor plans with walkout basement. 7:37 amish meadows recommended for you.
Singles, couples, families, empty nesters. 2021's best walkout basement floor plans & house plans. When you look for home. Two story open areas and vaulted spaces are not included in square foot totals. #modernfarmhouse #houseplans #openfloorplan #homedesign #housedesign #floorplans #onestoryhouse.
House Design Home Design Interior Design Floor Plan Elevations from mmh-pre-defined.s3.ap-south-1.amazonaws.com Square footage is typically calculated using heated square footage on the main and upper levels. Modern farmhouse complete with 3 bedrooms, 2 bathrooms, a mudroom, an open floor plan, and an outdoor kitchen. Use the plan picker 3000 to quickly reduce the number of energy plans from over 100 to a handful of them that are right for you. Walkout basement house plans for a sloping building site creates an opportunity for unique features such as access to the backyard from the basement and more natural light. It just won't be the same as above grade space on a dollar per square foot basis.having said that, we are seeing many clients. Sort results by square foot ascending square foot desending best selling. The overall square footage of real estate factors into an appraisal and, therefore, the financing of a house. Singles, couples, families, empty nesters.
7:37 amish meadows recommended for you.
Remember, you have the power to choose in texas. It just won't be the same as above grade space on a dollar per square foot basis.having said that, we are seeing many clients. Now the area you covered is appx. House plan is 41 feet wide by 40 feet deep and provides 1905… How square footage affects your mortgage. An attractive plan of 2000 square feet that portrait suspicious place for a big family with good ventilation this extraordinary plant can accommodate interior designs to all the rooms with beautiful accessories next article modern style home design and plan for 3000 square feet duplex house. Electrical plans are very customer specific and are not included in the standard plan set. They're more affordable to build, easier to maintain, and generally less expensive to heat and cool. Use the plan picker 3000 to quickly reduce the number of energy plans from over 100 to a handful of them that are right for you. To measure a home's square footage, sketch a floor plan of the interior. #modernfarmhouse #houseplans #openfloorplan #homedesign #housedesign #floorplans #onestoryhouse. Square footage is typically calculated using heated square footage on the main and upper levels. 2000 square feet house outlines ordinarily includes a few rooms and covers a solitary story, wiping out the issue of going here and there stairs consistently.
Force Outboard Fuel Filter : 1984 85hp Chrysler Force Fuel Filter Boating Forum Iboats Boating Forums - Use evinrude xd50, as it is by far the best and has less fumes. . Get the best deals on outboard intake & fuel systems. Cup) is located below the engine oil filter. Tohatsu fuel & oil filters. Select the department you want to search in. Shop, read reviews, or ask questions about fuel filters at the official west marine online store. | skip to page navigation. Be the first to know about force 4 special offers! Cheap fuel filters, buy quality automobiles & motorcycles directly from china suppliers:outboard 1*fuel filter s. Get the best deals on force outboard intake & fuel systems when you shop the largest online selection at ebay.com. Select the department you want to search in. Installing A Water Separating Fuel Filter In A Boat Youtube from i.ytimg.com ...
مباراة مصر : نتيجة وملخص مباراة حرس الحدود ونادي مصر دوري الخليج العربي ... / النني رفض اللعب أمام كينيا وطلب عدم الاستدعاء لمنتخب مصر. . مقال لكل مباراة وذلك ضمن التغطية المباشرة لموقع yalla shoot kora لمعرفة القنوات الناقلة وتشكيل الفرق ومواعيد المباريات والاحداث الهامة كما يتم نقل المباريات بث مباشر مجاناً عبر. يمكنكم مشاهدة مباراة إسبانيا واليونان بث مباشر اليوم يمكنكم الآن مشاهدة مباراة مصر وكينيا بث مباشر من خلال موقع الاسطورة لبث المباريات الذي يقدم لكم خدمة البث المباشر… أخبار الرياضة مباريات اليوم بث مباشر. موعد مباراة غانا وساوتومي القادمة الأحد. نتيجة مباراة مصر وكينيا اليوم الخميس في تصفيات كأس أمم أفريقيا. النني رفض اللعب أمام كينيا وطلب عدم الاستدعاء لمنتخب مصر. مقال لكل مباراة وذلك ضمن التغطية المباشرة لموقع yalla shoot kora لمعرفة القنوات الناقلة وتشكيل الفرق ومواعيد المباريات والاحداث الهامة كما يتم نقل المباريات بث مباشر مجاناً عبر. يعود الفراعنة مرة اخري بعد ضمان التاهل الي كاس الامم الافريقية مع مشاهدة مباراة مصر وجزر القمر اليوم التي تلعب في السا...
Monspart Sarolta : Monspart Sarolta a Nemzet Sportolója lett / Sarolta monspart, solo musical project driven by former punk and new wave musician anders palmqvist, based in the deep forests of sweden. . Sarolta monspart (born 17 november 1944) is a hungarian orienteering competitor. Sarolta monspart / turning water into funk жанр: Suomisaundi, psytrance, goa год издания: Dance n dust records аудиокодек: A beszélgetést szám kati, a képmás főszerkesztője vezeti. Sarolta monspart (born 17 november 1944) is a hungarian orienteering competitor. Sarolta monspart download free and listen online. Sarolta monspart фото исполнителя sarolta monspart. Monspart sarolta tájfutó világbajnok előadása a városi könyvtárban. Dropping out of the band thing in the late 80's and. Monspart Sarolta megkérte orvosát, hagyják abba a kemoterápiát from cdn.nwmgroups.hu Sarol...
Komentar
Posting Komentar